Riscaldamento casa in ristrutturazione

Se avete un problema di idraulica questo è il posto giusto per cercare una soluzione

Moderatore: dalmos

plcet
Messaggi: 4286
Iscritto il: lun 16 mar 2009 11:51 pm

Riscaldamento casa in ristrutturazione

Messaggio da plcet »

Buongiorno a tutti....avrei una domanda da fare....secondo voi, per una casa di montagna (750 slm) diciamo "disabitata" nel senso che ci si tornerebbe solo nel fine settimana che tipo di riscaldamento conviene mettere?? Non in termini economici che tanto li ormai c'è poco da pararsi...ma in termini pratici, tempistiche di riscaldamento stanze ecc ecc....la casa è di circa 60 mq!!
Considerate che non c'è un impianto preesistente e che i pavimenti o i muri comunque devo "tracciarli" :D
Fatemi sapere
Avatar utente
ENRICO51
Messaggi: 2071
Iscritto il: sab 16 apr 2022 9:44 am
Località: APRILIA LT

Re: Riscaldamento casa in ristrutturazione

Messaggio da ENRICO51 »

Servono più informazioni. Come sono posizionate le stanze? Uno o più livelli? In campagna o in centro abitato? Allacci all'acqua, alla corrente, al metano? Se puoi fai una piantina.
Avatar utente
mariobrossh
Moderator Maximo
Messaggi: 17225
Iscritto il: lun 17 ago 2009 9:11 am
Località: Cosenza

Re: Riscaldamento casa in ristrutturazione

Messaggio da mariobrossh »

per riscaldare 60 mq basta una buona stufa a pellet o meglio ancora una
cosiddetta cucina economica a legna che oltre a scaldare permette anche
di cucinare gratis, poi molto dipende da che tipo sei, se ti piace arrivare
e trovare la casa calda senza fare niente allora la caldaia a gas è insostituibile :-D
Condividere un'idea è sempre una buona idea :)
plcet
Messaggi: 4286
Iscritto il: lun 16 mar 2009 11:51 pm

Re: Riscaldamento casa in ristrutturazione

Messaggio da plcet »

ahhahahha scusate, non pensavo fosse così complicato..ecco perchè mi sto muovendo per tempo :D

la casa e disposta su 2 piani in centro di un piccolo paesino, (vorrei fare al piano terra cucina/soggiorno tutt' uno (non mi piace l' idea, per via degli odori ma gli spazi sono quelli che sono), affianco c'è un' altra stanza che vorrei trasformare in salottino/camera + un bagno....al piano di sopra ho 2 camere, un bagno in una delle 2, ed un bagnetto di servizio (solo wc) alla fine delle scale) ho deciso di comprarla per diversi motivi....il primo è il valore affettivo sia della casa che del paese ed il secondo perchè mi dispiace sempre non poter invitare amici (quelli veri) a casa "mia" per via di spazi posti letto ecc ecc. (per la piantina provvederò)

Avevo pensato anche al pellet o al termo camino (sicuramente farò venire un amico idraulico x valutare la cosa giusta) prima di iniziare i lavori che a prescindere vanno fatti.....tracce e tutto quanto, sia acqua che luce che eventualmente gas.

Mario non è che mi piace trovare la casa calda, anzi....però essendo abituato ad uscire dalla città ogni fine settimana per tornare su in montagna, ti assicuro che entrare in una casa alle 8.30 di sera e trovare i muri gelidi non è bello....ci sono passato per tantissimi anni, quando mio padre ancora lavorava e ti garantisco che la casa dove viviamo ancora oggi si scaldava di domenica pomeriggio, quando dovevamo ripartire :D quindi pensavo ad una soluzione "comoda" (ma solo per questo motivo....per la legna non avrei alcun problema a farla e finchè ci saranno ancora i miei che mi accendono il fuoco ok, ma dopo??? purtroppo devo pensare anche al domani e non solo all' oggi :D) senza togliermi quanto meno il piacere del camino che si sa, fa compagnia e soprattutto aumenta il colesterolo, specialmente in inverno :D
Avatar utente
mariobrossh
Moderator Maximo
Messaggi: 17225
Iscritto il: lun 17 ago 2009 9:11 am
Località: Cosenza

Re: Riscaldamento casa in ristrutturazione

Messaggio da mariobrossh »

allora se hai il metano vai di caldaia a gas e stop, l'alternativa potrebbe essere la stufa a pellet che
può essere programmata sia in accensione sia in spegnimento a condizione che venga lasciata
carica e col braciere pulito, addirittura adesso le fanno pure smart che puoi controllare da remoto ;-)
Condividere un'idea è sempre una buona idea :)
Avatar utente
ENRICO51
Messaggi: 2071
Iscritto il: sab 16 apr 2022 9:44 am
Località: APRILIA LT

Re: Riscaldamento casa in ristrutturazione

Messaggio da ENRICO51 »

Metano e caldaia penso sia la soluzione migliore, pensando al futuro, ne so qualcosa. Al paese ho una casa con caldaia a metano e basta un clik ,qui ho la stufa a legna, mia moglie è fissata con quella e ti assicuro che oltre i 70 è una fatica accatastare legna ma anche portare le cassette piene dal garage alla stufa. La vecchiaia arriva e arriva in fretta. :lol:
plcet
Messaggi: 4286
Iscritto il: lun 16 mar 2009 11:51 pm

Re: Riscaldamento casa in ristrutturazione

Messaggio da plcet »

Grazie a tutti per il supporto :D
Mario, ieri sera, parlando con un amico mentre eravamo a cena, ho scoperto che addirittura esiste la stufa a pellet che riscalda l' impianto termosifoni....non so che temperature possa raggiungere ma lui la ha e ci si trova molto bene....certo con i prezzi del pellet ad oggi meglio stare lontani, bisogna approfittare delle rimanenze (pare che attualmente il prezzo sia di 5€ perchè sono rimasti tutti accatastati in magazzino :D)

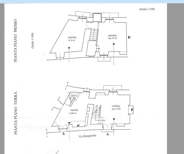
Comunque questa è la piantina.....sono poco più di 50 mq alla fine...considerandoci anche ulteriori tramezzi da alzare, ci rimane poco è niente (vabbe solo alla camera sotto ho deciso di farci un bagno, proprio per il futuro :(, purtroppo le scale sono comode ma per salirle hihihihihihi
Allego la piantina giusto per darvi una idea!!
Allegati
piantina.jpg
piantina.jpg (58.28 KiB) Visto 808 volte
plcet
Messaggi: 4286
Iscritto il: lun 16 mar 2009 11:51 pm

Re: Riscaldamento casa in ristrutturazione

Messaggio da plcet »

ENRICO51 ha scritto: mer 19 apr 2023 9:33 am Metano e caldaia penso sia la soluzione migliore, pensando al futuro, ne so qualcosa. Al paese ho una casa con caldaia a metano e basta un clik ,qui ho la stufa a legna, mia moglie è fissata con quella e ti assicuro che oltre i 70 è una fatica accatastare legna ma anche portare le cassette piene dal garage alla stufa. La vecchiaia arriva e arriva in fretta. :lol:
lo so...e io guardo avanti, non all' oggi proprio per questo motivo.
Comunque Mario....il metano non ancora è allacciato ed è proprio per questo che devo considerare tutto, resta comunque una casa "fine settimana" e "vacanze" (finchè ci sarà anche un motivo per tornare...i miei genitori).
Mi fa male doverlo dire ma da quando sono morti i genitori diverse famiglie, anche alle feste le case restano vuote ed è bruttissimo....beh dai positivi positivi :D
Avatar utente
mariobrossh
Moderator Maximo
Messaggi: 17225
Iscritto il: lun 17 ago 2009 9:11 am
Località: Cosenza

Re: Riscaldamento casa in ristrutturazione

Messaggio da mariobrossh »

guarda che io ho avuto la stufa a pellet per 10 anni ed era "idro" cioè
era allacciata ai termosifoni, se non hai il metano secondo me è una
valida alternativa, certo va pulita, il pellet va stoccato ma se lo compri
a giugno lo paghi di meno e i prezzi scenderanno perché la gente non
è così stupida ;-)
Condividere un'idea è sempre una buona idea :)
plcet
Messaggi: 4286
Iscritto il: lun 16 mar 2009 11:51 pm

Re: Riscaldamento casa in ristrutturazione

Messaggio da plcet »

mariobrossh ha scritto: gio 20 apr 2023 6:16 pm guarda che io ho avuto la stufa a pellet per 10 anni ed era "idro" cioè
era allacciata ai termosifoni, se non hai il metano secondo me è una
valida alternativa, certo va pulita, il pellet va stoccato ma se lo compri
a giugno lo paghi di meno e i prezzi scenderanno perché la gente non
è così stupida ;-)
Lo so Mario.....la gente stupida non lo è, ma la cosa che più mi dispiace e che invece vogliono prenderci!!!
Beh sicuramente la stufa deve essere pulita e carica per essere accesa a distanza (credo si possa fare no??) ma io potrei anche valutare anzichè i termosifoni riscaldati a pellet, i bocchettoni d' aria, per una casetta dovrebbero essere sufficienti per scaldare.....dovrò trovargli la nicchia dove piazzarla ma da qualche parte esce :D
La prossima settimana ne parlo con l' amico idraulico e vediamo cosa meglio ritiene opportuno fare....il metano potrei anche evitare di allacciarlo almeno per ora, per la cucina potrei utilizzare la bombola del gas che mi durerebbe più o meno un anno considerando il tempo che ci vivrei :D
Arriverò al punto, ora la cosa che mi preme e di definire il progetto in modo da presentare la domanda e iniziare dal cappello di casa che ha qualche infiltrazione :(
Avatar utente
mariobrossh
Moderator Maximo
Messaggi: 17225
Iscritto il: lun 17 ago 2009 9:11 am
Località: Cosenza

Re: Riscaldamento casa in ristrutturazione

Messaggio da mariobrossh »

si può fare ma devi avere l'adsl in casa oppure una buona linea
mobile, quindi inserire una sim nell'apposito adattatore ed avere,
in ogni caso, la stufa predisposta perché non basta accenderla per farla partire ;-)
Condividere un'idea è sempre una buona idea :)
plcet
Messaggi: 4286
Iscritto il: lun 16 mar 2009 11:51 pm

Re: Riscaldamento casa in ristrutturazione

Messaggio da plcet »

mariobrossh ha scritto: mar 25 apr 2023 1:17 pm si può fare ma devi avere l'adsl in casa oppure una buona linea
mobile, quindi inserire una sim nell'apposito adattatore ed avere,
in ogni caso, la stufa predisposta perché non basta accenderla per farla partire ;-)
lo so, lo so conosco diverse persone che la hanno :D
plcet
Messaggi: 4286
Iscritto il: lun 16 mar 2009 11:51 pm

Re: Riscaldamento casa in ristrutturazione

Messaggio da plcet »

ciao ragazzi....alla fine mi sono consultato con un amico idraulico e ad oggi, credo che la soluzione finale sarà quella dei condizionatori, però visto che comunque devo rifare le tracce, anche elettriche, gli ho chiesto di farmi una predisposizione per i termosifoni, così un domani, vivendoci di più posso valutare anche questo tipo di riscaldamento.
Purtroppo si parla di invernate fredde e di estati ad oggi anche calde (cosa che diversi anni fa non facevano....perlomeno non in montagna) e quindi preferisco avere un agio adesso, senza dover poi rompere tutto domani...basterà fare il vano caldaia, l' allaccio del metano e siamo apposto.
Grazie comunque per gli aiuti.
Francy
Messaggi: 12
Iscritto il: gio 27 apr 2023 8:40 am

Re: Riscaldamento casa in ristrutturazione

Messaggio da Francy »

per me metano + termosifoni controllabili da remoto + cucina economica

il giorno prima o la mattina per la sera via remoto accendi la caldaia a 15/16 gradi
quando arrivi accendi la cucina economica
plcet
Messaggi: 4286
Iscritto il: lun 16 mar 2009 11:51 pm

Re: Riscaldamento casa in ristrutturazione

Messaggio da plcet »

che intendi per cucina economica??
Rispondi